Lokal na wynajem Ruda Śląska, Nowy Bytom

2 pokoje
86.00 m²
29,00 zł/m2
1 piętro
IRE-LW-290

2 494 zł

Lokal na wynajem

szczegoly.oferty

Symbol oferty IRE-LW-290
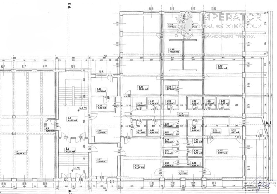
Powierzchnia 86,00 m²
Liczba pokoi 2
Rodzaj budynku Obiekt handlowo-usługowo-biurowy
Standard
Piętro 1
Liczba pięter w budynku 2
Stan lokalu Do wprowadzenia
Rodzaj lokalu wielopoziomowy
Przeznaczenie lokalu biurowo-magazynowy, biurowy, handlowo-usługowy, handlowy, magazynowy, usługowy
Natalia Trestka

Natalia Trestka

CEO / Real Estate Agent
licencja: 28131

napisz.wiadomosc 88 ofert

opis.nieruchomosci

Do wynajęcia biura o metrażach od 10 m2 do 1.350 m2 – inwestycja Szyb Walenty, Ruda Śląska

Oferujemy do wynajęcia powierzchnie biurowe w inwestycji Szyb Walenty w Rudzie Śląskiej, zlokalizowanej w jednym z najlepiej skomunikowanych punktów Górnego Śląska.
 

LOKALIZACJA W CENTRUM ŚLĄSKA

Nieruchomość położona jest bezpośrednio przy Trasie N-S, w sąsiedztwie:

  • DTŚ – Drogowej Trasy Średnicowej
  • autostrady A4

Lokalizacja zapewnia idealny dojazd pomiędzy Katowicami a Gliwicami oraz szybkie połączenia ze wszystkimi miastami konurbacji śląskiej. To doskonałe miejsce dla firm działających na całym obszarze aglomeracji.


Elastyczne możliwości najmu

W ofercie dostępne są:

  • pojedyncze pomieszczenia biurowe o powierzchniach od 10 m² do 60 m²
  • większe pomieszczenia typu open space o powierzchni ok. 180 m²
  • możliwość wynajmu całych pięter lub wydzielonych części budynku

Powierzchnie doskonale sprawdzą się jako biura, zaplecze administracyjne, back-office, call center, pracownie projektowe lub inne działalności usługowe


duże, wygodne i bezpłatne parkingi

  • zlokalizowane bezpośrednio pod budynkami
  • przeznaczone zarówno dla pracowników oraz klientów


Standard i udogodnienia

  • wszystkie powierzchnie odświeżone i gotowe do użytkowania
  • dostępne toalety w obiekcie
  • siłownia dla najemców
  • funkcjonalne i jasne pomieszczenia w obiekcie o industrialno-biurowym charakterze


Dostępne powierzchnie

Budynek / część

Dostępna powierzchnia

Budynek A

1 350 m²

Budynek B

300 m²

Piwnice

200 m²

Dodatkowo dostępne biura o metrażach 10–60 m² oraz open space ok. 180 m²


NAJWAŻNIEJSZE ATUTY

  • bezpośrednie sąsiedztwo Trasy N-S, DTŚ i autostrady A4
  • szybki dojazd z całego Śląska
  • elastyczne metraże
  • niskie koszty najmu i utrzymania
  • dodatkowe udogodnienia dla najemców
  • spokojna lokalizacja sprzyjająca pracy biurowej

Zapraszamy do kontaktu w celu uzyskania szczegółowych informacji oraz umówienia prezentacji powierzchni.

OFERTA WYŁĄCZNIE W NASZYM BIURZE

GRUPA IMPERATOR
Opiekun Oferty - Natalia Trestka
telefon/WhatsApp/SMS 570 499 222
 
Oferujemy Państwu bezpłatną pomoc w uzyskaniu kredytu

lokalizacja.nieruchomosci

CEO / Real Estate Agent

Proszę wprowadzić poprawne imię i nazwisko
Proszę wprowadzić poprawny numer telefonu
Proszę wprowadzić poprawny adres e-mail
zaznacz.pole
rozwiaz.rownanie:
28 7
niepoprawny.wynik